西東京市保谷町5丁目で7区画の分譲地を販売開始しました。
11月末までは土地のみの分譲も可能ですが、それ以降は新築建売として販売予定です。
お気軽にお問い合わせください。
【物件概要】
所在:西東京市保谷町5-3-28付近
交通:西武新宿線「西武柳沢」駅徒歩12分、「田無」駅徒歩19分
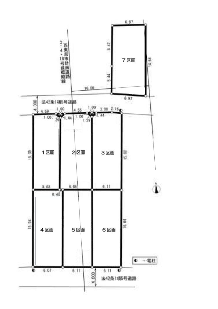
地積:87.34㎡~102.96㎡
用途地域:第一種中高層住居専用地域
建蔽率:50%
容積率:150%
現況:更地
_page-0001-740x1046.jpg)
【区画図】

【1・2・3区画】

【4・5・6区画】

【7区画】
弊社では、東京都・埼玉県を中心に、他社が取り組みできないような25㎡~の狭小地、変形地を中心に、不動産を買い取りしております。
残置物はそのままで売却したい、測量を行わずに早期に売却したい、などのニーズにも対応可能です。
また、空室が長期化して収益が悪化している、今の管理会社がきちんと募集してくれない、建物が老朽化しているが修繕費が高過ぎて困っている、など、賃貸経営でお困りのアパートオーナー様も、調布駅前のウィズ・コネクションにお任せください。